745 Imperial LoopAlvin, TX 77511
Due to the health concerns created by Coronavirus we are offering personal 1-1 online video walkthough tours where possible.




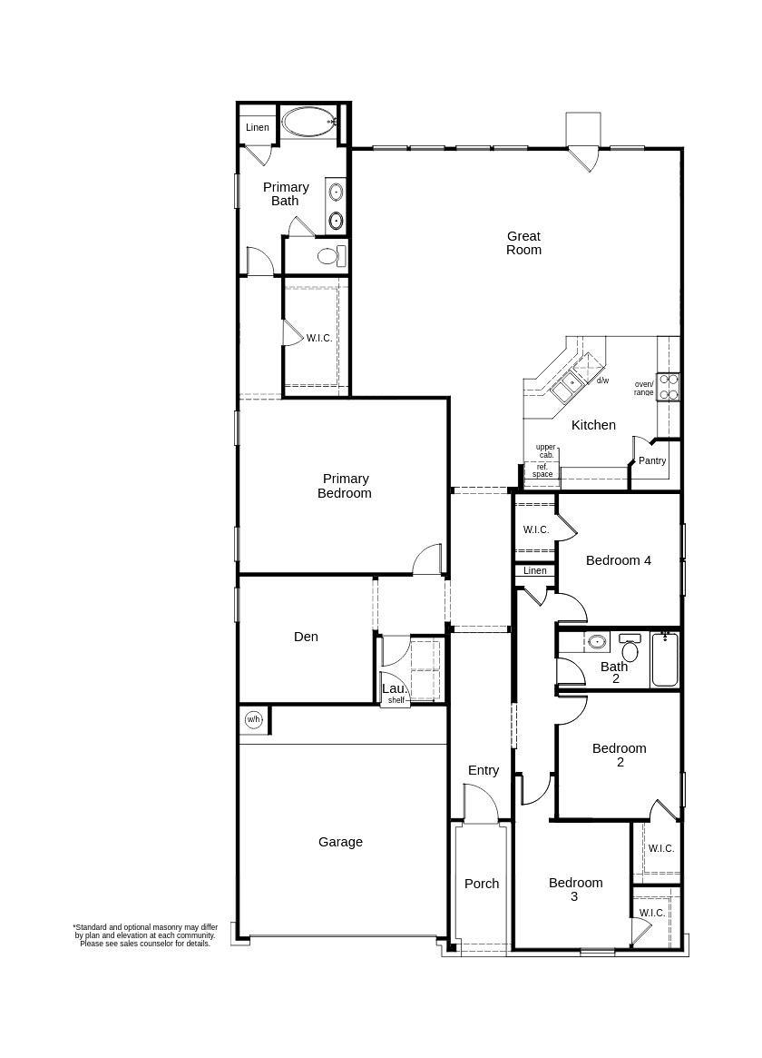
KB HOME UNDER CONSTRUCTION - Welcome to 745 Imperial Loop, a beautifully appointed single-story home in the sought-after Imperial Forest community, zoned to Alvin ISD. This home offers both privacy and comfort with 4 bedrooms, 2 full baths, and a 2-car garage. Thoughtfully designed, this home features a gorgeous kitchen with Granite countertops, a spacious island, and stainless steel Whirlpool appliances, including microwave. The primary suite includes dual sinks, while the secondary bathroom offers a vanity with knee space. Each bedroom comes complete with its own walk-in closet, offering ample storage. Additional features include 2" faux wood blinds, front gutters, and rear patio slab—perfect for relaxing or entertaining. This home truly has it all—don’t miss your chance to make it yours! Call today to schedule your private showing.
| 6 hours ago | Listing updated with changes from the MLS® | |
| 6 hours ago | Listing first seen on site |
IDX information is provided exclusively for consumers’ personal, non-commercial use. It may not be used for any purpose other than to identify prospective properties consumers may be interested in purchasing. This data is deemed reliable but is not guaranteed accurate by the MLS.
Data provided by HAR.com © 2025. All information provided should be independently verified.

Did you know? You can invite friends and family to your search. They can join your search, rate and discuss listings with you.